Деревянно-металлический забор: порядок изготовления от А до Я! Строим комбинированный забор своими руками для частного дома
Обносить дом забором в наши дни является обязательным требованием не только из эстетических побуждений, но и из соображений безопасности.
К тому же, просто дом без какой-либо ограды смотрится непривычно для нашего глаза. Ведь его основная функция — защита от различных недоброжелателей и бродячих животных.
Раньше единственными материалами для ограды являлись камень и дерево. Сегодня, рынок строительных материалов предлагает более богатый ассортимент, куда входит сетка рабица, пластиковые ограды, кирпич, бетон, профильные трубы и прочее.
Тем не менее забор из дерева все еще не утратил своей привлекательности в глазах наших соотечественников.
В этой статье мы поговорим с вами о деревянных ограждениях и их возможном соединении с металлическими опорными столбами.
Преимущества деревянного забора
Итак, как уже говорилось раннее, дерево по-прежнему пользуется большим спросом на роль потенциального забора.
Хотелось бы узнать — почему? Его характерные преимущества выражены в следующих моментах:
- Это натуральный материал, который к тому же является экологически чистым и не выделяет в атмосферу вредные вещества при нагревании на солнце.
- Относительно доступная цена. Например, возвести забор из качественного кирпича влетит в гораздо большую копейку, чем провести закупку дубовыми или березовыми досками.
- Приятный внешний вид материала. Здесь вы можете украшать свой участок так, как пожелает ваша душа. Это может быть традиционная резьба по дереву с ее замысловатыми завитками и вензелями, или лакокрасочное покрытие, которое лишний раз защитит древесину от пагубного воздействия солнечных лучей и влаги. Вы можете также оставить доски в первозданном виде, чтобы была видна оригинальная текстура досок. Единственное, их все равно придется обработать специальными составами для продления срока эксплуатации.
- Дерево неплохо вписывается в экстерьер любого двора.
- Большой выбор вариантов монтажа и дизайна.
Иными словами, у дерева имеется внушительный список преимуществ. А все недостатки в настоящее время можно с легкостью свести к минимуму, своевременно обработав поверхность антисептиками.
Преимущества металлического забора
Раз уж в этой статье речь идет о деревянно-металлическом заборе, то будет не лишним упомянуть также преимущества металла.
- Установка металлических опор производится относительно легко.
- Такие конструкции могут простоять очень долго.
- Металл сам по себе очень прочный.
- Материал не деформируется после разного рода нагрузок и остается в своей первоначальной форме.
- Вы можете фиксировать на нем другие крепежи как при помощи шуруповерта и саморезов, так и при помощи сварки.
Касаемо недостатков, можно сказать, что при использовании металлических труб себестоимость вашей ограды значительно возрастет.
Однако, этот минус перекрывает тот факт, что именно с такими опорами, ваш забор прослужит гораздо дольше.
Сечение труб для столбиков
Металлические трубы могут продаваться с разным сечением. Давайте рассмотрим, каких видов они бывают, и какие характерные особенности у каждого из них.
- Квадратное сечение: изделия с подобным видом сечения можно назвать более надежными.
- К ним легче крепятся и надежней крепятся необходимые элементы. Максимальная высота — до 4 метров, размер сторон — до 10 см, толщина стенки — 4 мм.
- Круглое сечение: стоимость таких труб гораздо меньше, чем у предыдущего вида.
- Более того, благодаря круглой форме вы можете подобрать товар с нужными вам габаритами.
Прямоугольное сечение: нельзя сказать, что такая труба будет существенно отличаться от первой из этого списка. Говоря по существу, отличие имеется только в форме, остальные параметры соответствуют общепринятым стандартам.
Как продлить срок службы забора
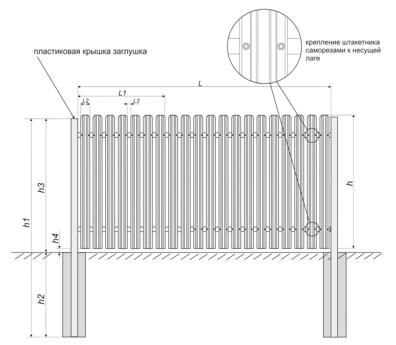
Раз уж мы говорим о деревянном заборе с металлическими опорами, нам следует подумать, как и чем обработать два совершенно непохожих материала, чтобы они могли прослужить как можно дольше.
В первую очередь займитесь обработкой досок. Древесина чувствительна к влаге. Более того, она может терять свой цвет и немного деформироваться под влиянием прямых солнечных лучей.
Чтобы этого не происходило, вам следует сделать вот что:
- Приобрести антисептические составы для древесины. Качественная обработка поможет спасти доски от гниения, деятельности насекомых, грибка и плесени.
- Обязательное покрытие либо лаком, либо краской. Кроме этого, обезопасить нужно и металл.
- Столбы покрываются специальными красящими составами, которые снизят риск появления коррозии и минимизируют механическое воздействие на стенки.
Более того, на пики ваших столбов желательно изготовить и надеть колпаки. Это делается для того, чтобы лишняя влага вместе с осадками не проникала внутрь.
Подготовка участка для возведения забора
Перед началом закупки материалов и изготовлением будущей ограды вам просто необходимо составить чертеж, продумать в мельчайших подробностях проект будущего забора.
Отталкиваясь уже от него, вы сможете правильно рассчитать необходимо количество материалов и не накупить лишнего. Еще одним хорошим вариантом можно назвать нанесение разметки на территории вашего двора. Что для этого нужно сделать?
- Во-первых, подготовить участок. То есть, на месте предполагаемого забора вам нужно разровнять почву, убрать растительность, выкорчевать кусты, избавиться от камней и прочее.
- Во-вторых, нанесение самой разметки. Вам понадобится вбить колышки по предполагаемому периметру, обязательно соединить их при помощи бечевки. Установить одинаковый шаг между местами, где будут стоять столбы (обычно он находится в пределах 2-3 метров).
Установка столбов для забора
Можно выделить два бюджетных варианта фиксации:
- Забивание столбов в почву. Данный путь считается более выгодным в плане финансов.
- Для его воплощения требуется минимум два человека, где один вбивает трубу, а второй следит за ее положением, чтобы все было ровно.
- Закапывание опор. Для этого понадобится при помощи садового бура пробурить отверстия в грунте, установить туда трубу и утрамбовать почву.
Для тех, кто не привык экономить на качестве, рекомендуется бетонировать опоры, крепить их на бетонный цоколь, использовать винтовые сваи.
Лайфхаки от опытного мастера
Итак, что вам необходимо знать, чтобы ваши опоры были надежно, а главное надолго зафиксированы в земле?
- В первую очередь, это то, что закапывать столб в землю желательно на треть от его оригинальной высоты.
- Это сделает его более устойчивым и позволит выдержать механически нагрузки любой направленности.
- Для того чтобы он не расшатывался со временем, желательно в зазоры между землей и металлом насыпать кирпичной крошки и залить все это цементированным раствором.
Далее, строго следите за их расположением на одном уровне относительно друг друга. Начинаться работа должна с установки крайних свай. А после, внутренние равняют по угловым.


















































































































